欢迎光临山东华储环保装备有限公司官网!
联系我们
产品展示
网站首页
咨询热线:
0635-5039000
网站首页
关于我们
公司简介
企业文化
资质荣誉
厂房设备
工程案例
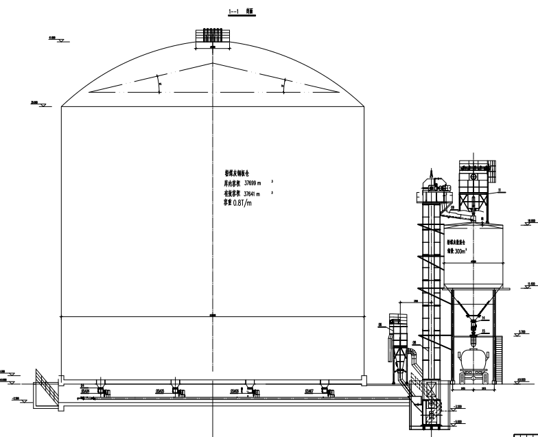
粉煤灰钢板仓
骨料钢板仓
水泥钢板仓
焦炭钢板仓
产品中心
粉煤灰分选设备
流化棒
收尘器
呼吸阀
新闻咨询
公司新闻
中标公示
技术问答
厂房设备
产品演示
联系我们
您的位置:
网站首页
>
新闻中心
新闻中心
公司新闻
中标公示
技术问答
咨询热线
0635-5039000
189-6355-5098
钢板库筒仓施工辅助设备领域的发明
钢板库筒仓施工辅助设备领域的发明...
了解详情
钢板仓施工高处作业的安全措施
钢板仓施工高处作业的安全措施...
了解详情
钢板仓建设工程项目中的“五算”
估算,概算,预算,结算,决算...
了解详情
关于钢板仓施工班组安全生产管理工作心得
安全工作是重中之重,施工队要清楚的认识到每个班组成员是安全管理中的基本环节,只有把班组每个人的安全工作搞好了,才能把整个班组的安全工作提上一个新台阶。...
了解详情
1025 条记录 共 257 页
首页
上一页
下一页
末页
每页 4 条
城市地图