欢迎光临山东华储环保装备有限公司官网!
联系我们
产品展示
网站首页
咨询热线:
0635-5039000
网站首页
关于我们
公司简介
企业文化
资质荣誉
厂房设备
工程案例
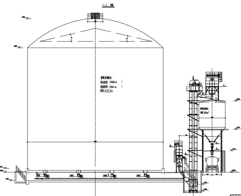
粉煤灰钢板仓
骨料钢板仓
水泥钢板仓
焦炭钢板仓
产品中心
粉煤灰分选设备
流化棒
收尘器
呼吸阀
新闻咨询
公司新闻
中标公示
技术问答
厂房设备
产品演示
联系我们
您的位置:
网站首页
>
新闻中心
新闻中心
公司新闻
中标公示
技术问答
咨询热线
0635-5039000
189-6355-5098
钢板仓通风系统的作业及意义
钢板仓通风系统克服了现有技术的不足,提供一种高效除尘、降温、除湿的钢板仓通风系统。 ...
了解详情
钢板仓施工时的防雷、接地措施
钢板仓施工时的防雷、接地措施...
了解详情
钢板仓施工时 抑尘喷洒系统
钢板仓施工时 抑尘喷洒系统...
了解详情
建造钢板仓时需要注意什么
建造钢板仓时需要注意什么...
了解详情
1025 条记录 共 257 页
首页
上一页
下一页
末页
每页 4 条
城市地图